Kaab at the Park
El proyecto se ubica Playa del Carmen, en la colonia Ejidal, un predio entremedianeras de 1,750 m2 con 2 frentes, la fachada principal mira al parque natural de La Ceiba, una reserva natural protegida.
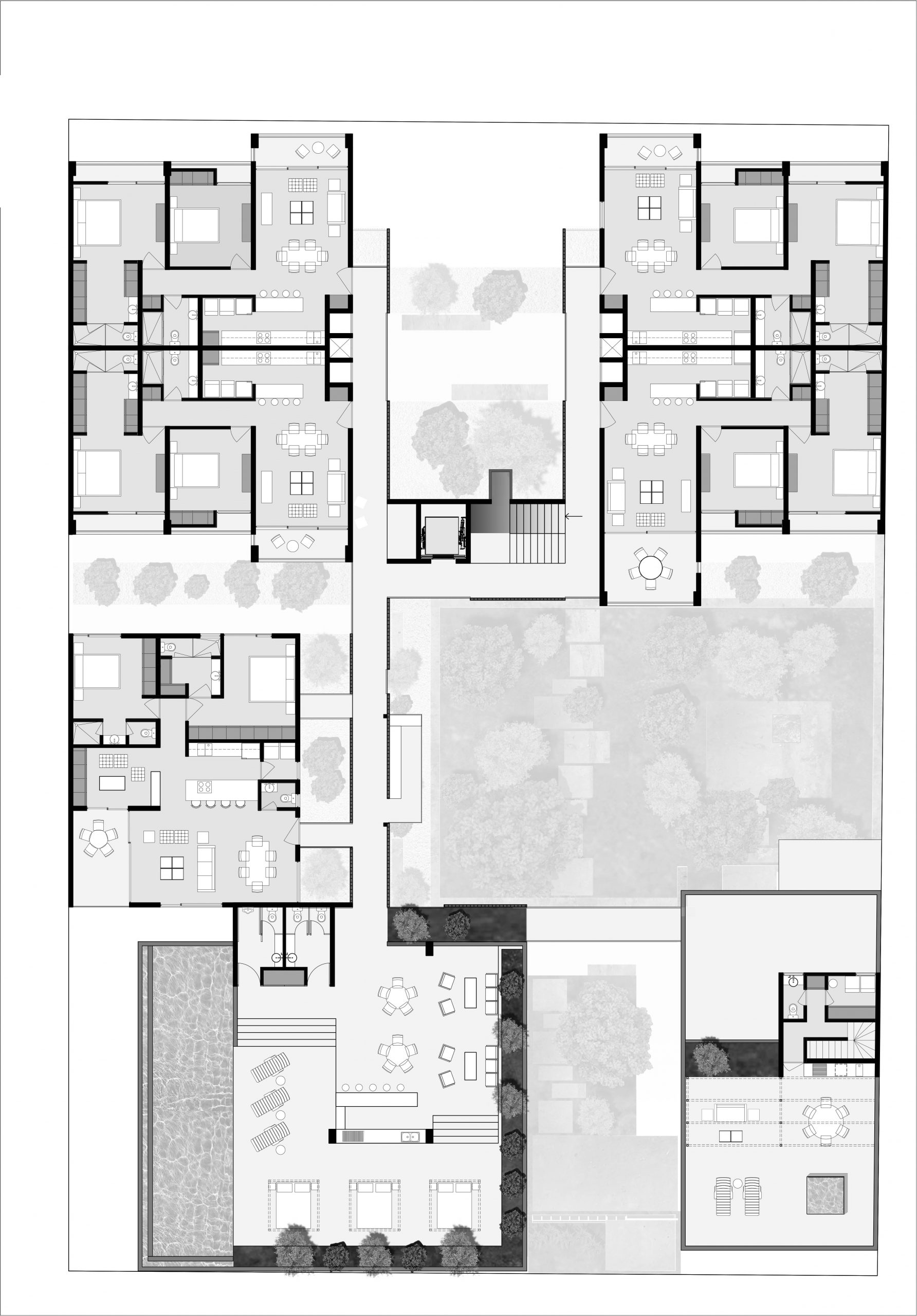
El planteamiento y emplazamiento del proyecto nace de respetar la vegetacion existente, creando una serie de patios interiores, que van configurando distintos microclimas en los volumenes del edificio. El ingreso principal a traves de un patio con una Ceiba que sirve de filtro para ingresar a otro patio central con la vegetacion existente.
El proyecto consta de 5 volumenes conectados a traves de puentes alrededor de los patios. Estos puentes pasillo además de tener la función de conectar los distintos departamentos, funcionan como un elemento de puentes terraza, puentes mirador, como espacios de relación entre los diferentes vecinos, protegidos por medio de una celosia cuadricular de concreto prefabricado.
El desarrollo cuenta con 46 departamentos de distintas tipologias y variaciones entre 60, 100 y 120 m2, locales comerciales, areas de coworking y esparicimiento en planta baja. Azotea con areas de convivencia. Un conjunto concebido desde su emplazamiento y sus premisas de diseño en relación con el medio ambiente y el desarrollo sustentable.
Proyecto: 2017-18
Construcción: 2018-2021
Ubicación: Playa del Carmen, Quintana Roo, México
Arquitectura: EMA (Alessandra Cireddu-Carlos M. Hernández) + EIDOS Aquitectura (Marco Ramírez)
Colaboradores: Francisco Soler
Construcción: EIDOS Arquitectura
Fotografías: EMA













