Casa MM
Casa MM se encuentra de un coto cerrado en Bosques Vallarta, la casa parte de de dos volumenes blnacos cerrados hacia la calle a distintas alturas, permitiendo la casa se desarrolle hacia un patio interior.
Con un programa desarrollado en 3 niveles, la casa se distribuye a traves de un patio de luces de triple altura. La fachada responde a este juego de primas rectangulares que se van interpolando uno sobre otro, generando una doble altura en la puerta principal remetida.
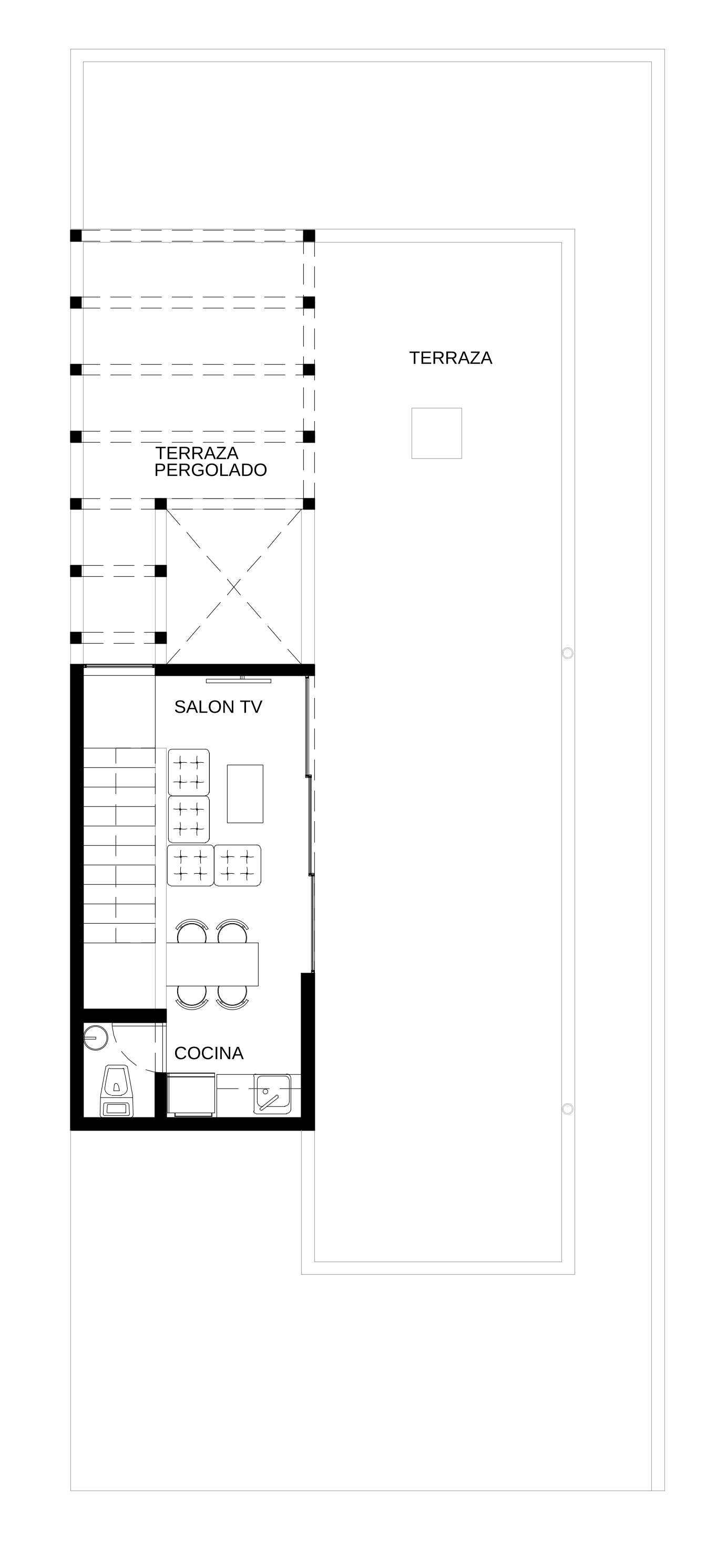
La casa cuenta con cocina, sala, comedor, terraza jardin, patio, cuarto de servicio en la planta baja. Recamara principal con baño vestidor, 2 recamaras gemelas en planta 1. Cocina, sala de juegos y terraza en el nivel de azotea.
Proyecto: 2015
Construcción: 2015-2016
Ubicación: Zapopan, Jalisco, México
Arquitectura: EMA (Alessandra Cireddu-Carlos M. Hernández)
Construcción: SEPROCO SA de CV
Fotografías: Patricia Hernández










